蘑菇TV官网进入,成人蘑菇国产免费软件,蘑菇视频官方入口,蘑菇TV网页版登录入口

    

    language 中文简体 中文繁体 English 目录在线 目录下载 收藏蘑菇TV官网进入在线留言站点地图

    蘑菇TV官网进入电机散热风扇厂家专注如AC蘑菇TV网页版登录入口,DC直流散热风机生产
    深圳工厂:0755-28035670业务专线:13603004952

    台湾蘑菇TV官网进入 - 32年散热风扇研发制造工厂

    Taiwan SANJU Electric

    深圳市蘑菇TV官网进入电机有限公司

    聚焦蘑菇TV官网进入,了解更多风扇知识

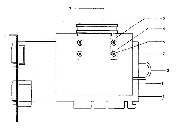
    电脑显示卡热导管可移动散热风扇装置的思路

    返回列表 发布日期: Jul 08, 2019

    目前人们常常在电脑机箱内设置风扇对电脑显示卡进行散热,效果欠佳,个别电脑显示卡侧面设置散热片,由于电脑显示卡大多为不规则设计,有的PCB比较高,有的比较长,安装操作很不方便,大大影响了散热效果,缩短了电脑的使用寿命。

    一种电脑显示卡热导管可移动散热风扇装置的思路。目前人们常在电脑机箱内设置风扇对电脑显示卡进行散热,效果欠佳,个别电脑显示卡侧面设置散热片,但由于电脑显示卡大多为不规则设计,安装操作很不方便。本实用 新型由两面散热片、热导管、风扇和可移动杆构成,两面散热片之间由热导管连接,散热片上设置有可移动杆,可移动杆顶端固定设置有风扇,可移动杆上还设有长方形的移动槽。通过螺丝、 固定螺杆将该散热装置的两面散热片固定在电脑显示卡两侧,根据不同电脑显示卡的形状,还可以通过移动槽_上的固定螺杆和螺丝的升降位置而轻松安装风扇。可同时给主芯片和热导管散热,安装操作方便灵活,散热速度快,效果好,成本低廉,便于推广。


    
    关闭

    微信公众号

    咨询热线
    +86-755-2803-5670
    在线客服
    top
    网站地图